
Home
Feel connected
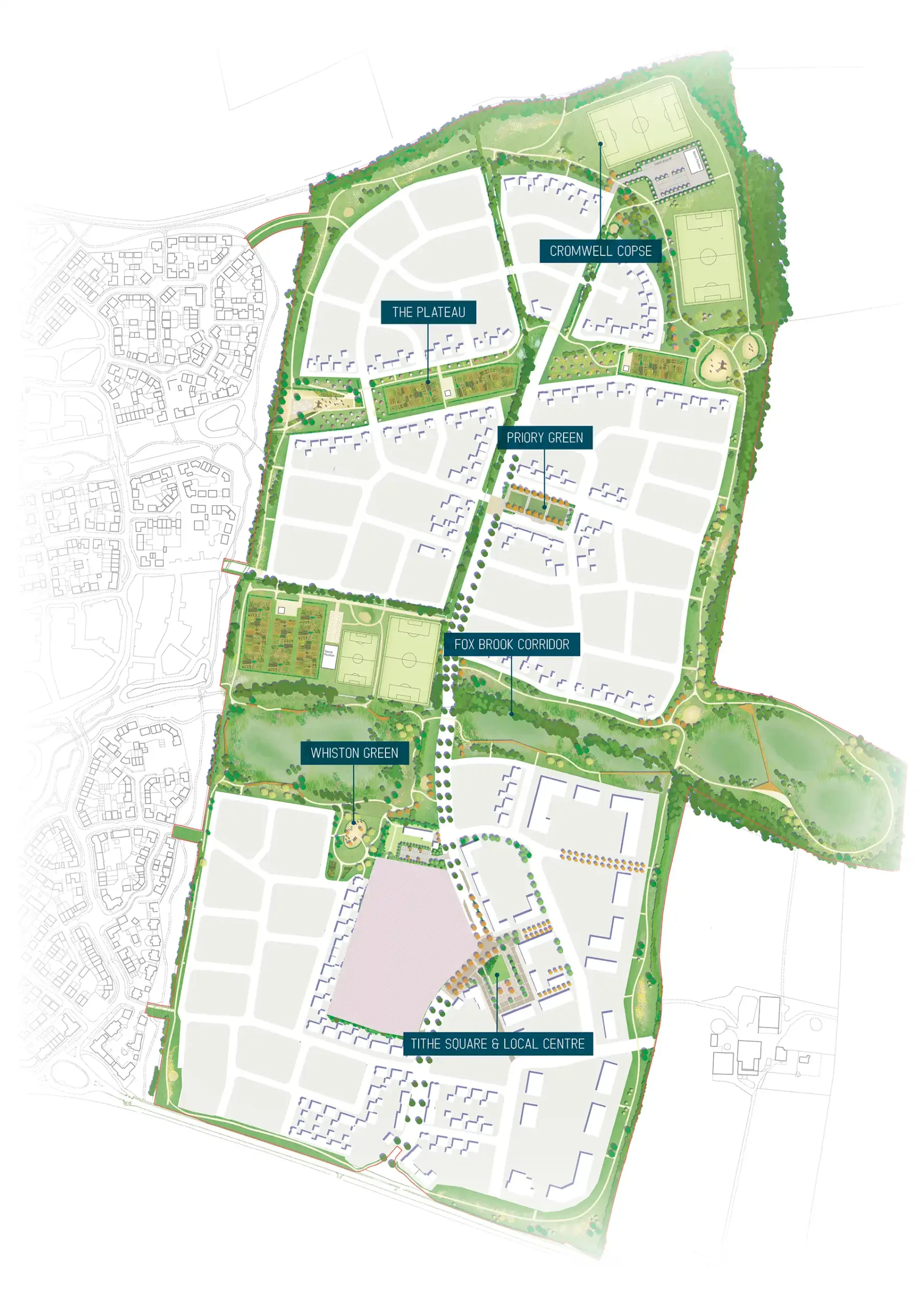
The next phase of Love’s Farm features well-connected neighbourhoods and facilities linked by direct and attractive footpaths and cycleways, encouraging a healthy, active way of life.
A short walk from local amenities in Love’s Farm and Wintringham, and close to the bustling market town of St Neots, the nearby railway station also provides sustainable links to the wider area – ideal for work, day trips and weekend explorers.
With abundant green spaces woven throughout the development, residents can enjoy the essence of nature on their doorstep – from green corridors to leafy parks and open green spaces - all supporting a mosaic of wildlife habitats. Whether taking a stroll, cycling to a local café or simply relaxing at home, the next phase of Love’s Farm is the perfect place to thrive naturally.

Buying a home
A fresh collection of new homes is coming to the next phase of Love’s Farm, brought forward by a range of national housebuilders. Offering a diverse mix of stylish apartments and modern houses, the development is thoughtfully designed to cater to contemporary lifestyles.
Every home is built to a high standard, guided by a robust Design Code that ensures cohesive, sustainable and visually appealing neighbourhoods. Whether you're a first-time buyer or looking to upgrade, the next phase of Love’s Farm provides a welcoming home.

Once completed, we will have:
- New homes
- A nursery/creche and primary school
- A pub/hotel
- Care accommodation
- A network of footpaths and cycleways
- Green spaces and play areas
- Two football pitches, a pavilion with function room and two youth pitches with changing facilities
A new community

Supporting health and wellbeing, the next phase of Love’s Farm incorporates social spaces for the community to meet and enjoy time together; landscape designs with native planting that enhance and expand wildlife habitats; recreational green spaces with formal play areas and pitches to support an active lifestyle; and a range of facilities and amenities to support the new community.
To create safe, walkable neighbourhoods, the next phase of Love’s Farm follows guidelines set out by “Secured By Design” using a combination of physical security and proven principles of natural surveillance and defensible space to design out crime.
